









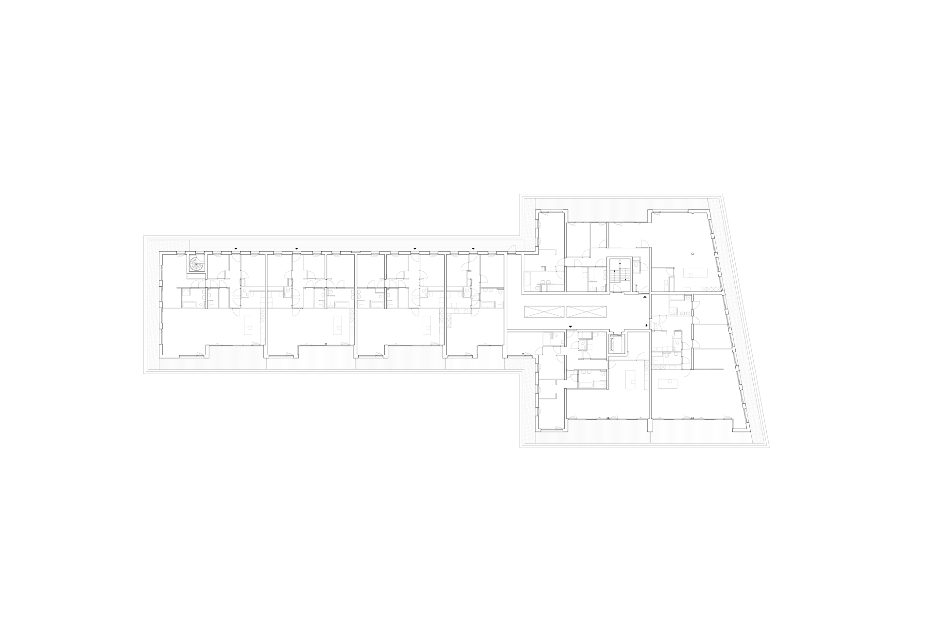
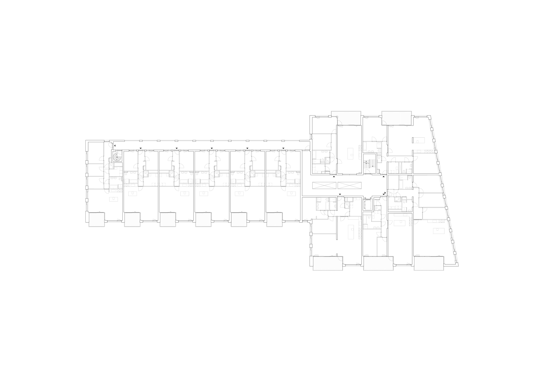
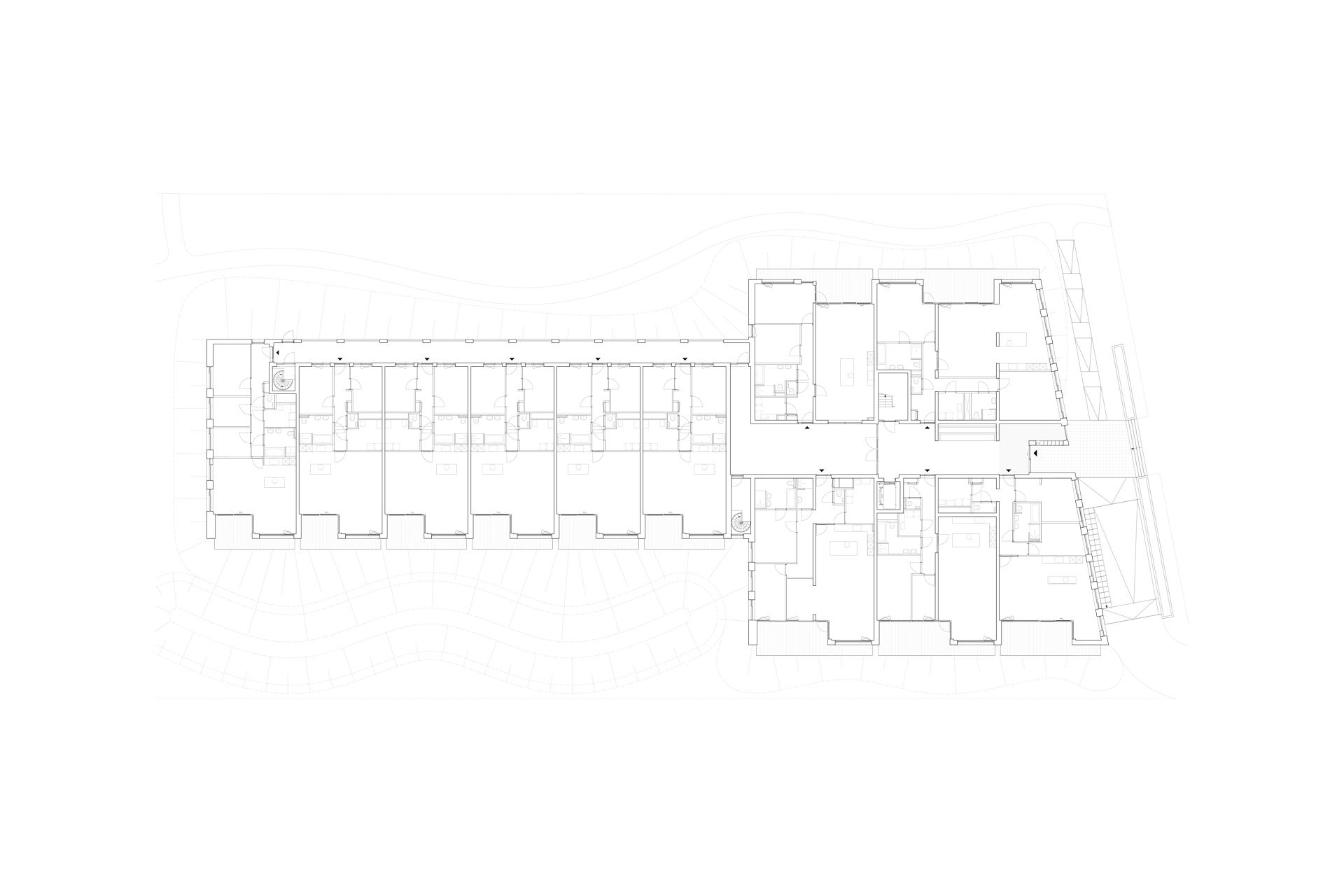
Woongebouw De Hoogschout vormt samen met het naastgelegen klooster ’t Withof een harmonieus ensemble. De gebouwmassa omsluit enkele intieme buitenruimtes in de groene omgeving van het klooster en is een moderne toevoeging aan de historische bebouwingsrij langs de Bisschopsmolenstraat. Met 40 centraal gelegen appartementen faciliteert De Hoogschout de doorstroom van bewoners in Etten Leur. De woningen zijn gericht op empty-nesters, beschikken over royale balkons, en voorzien in een hoge mate van toegankelijkheid. Het architectonisch karakter wordt bepaald door een zorgvuldig geproportioneerde rastergevel die reageert op de omliggende stedenbouwkundige ruimtes. Aan de lange zijden van het complex opent het gebouw zich naar de lommerijke omgeving met grote ramen en royale buitenruimtes. Door de toepassing van half verdiepte balkons is er zowel maximaal uitzicht op de omgeving, als ruimte om uit de wind te zitten. Techniek, bergingen en auto’s zijn allemaal ondergebracht in een half verdiepte parkeergarage. Hierdoor liggen de woningen op de begane grond iets verhoogd en hebben ze een indirecte relatie met de groene omgeving. Een gebiedseigen materialisering van lichte gevelstenen met donkere spekbanden en diepgelegen kozijnen in combinatie met een moderne detaillering geeft het gebouw een eigentijds karakter. Het kleurgebruik is zorgvuldig afgestemd op het historische Withof complex.
Location: Bisschopsmolenstraat, Etten-Leur
Program: woningbouw
Description: 40 appartementen
Landscape design: MAAK Space
Client: Nederlandse Bouw Unie
Year: 2021-2024
Status: completed
Photography: Sebastian van Damme
Structural engineer: A.V.S. Engineering