




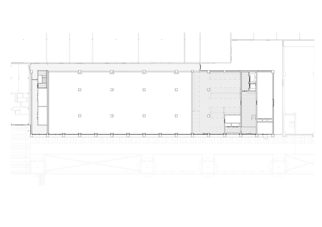
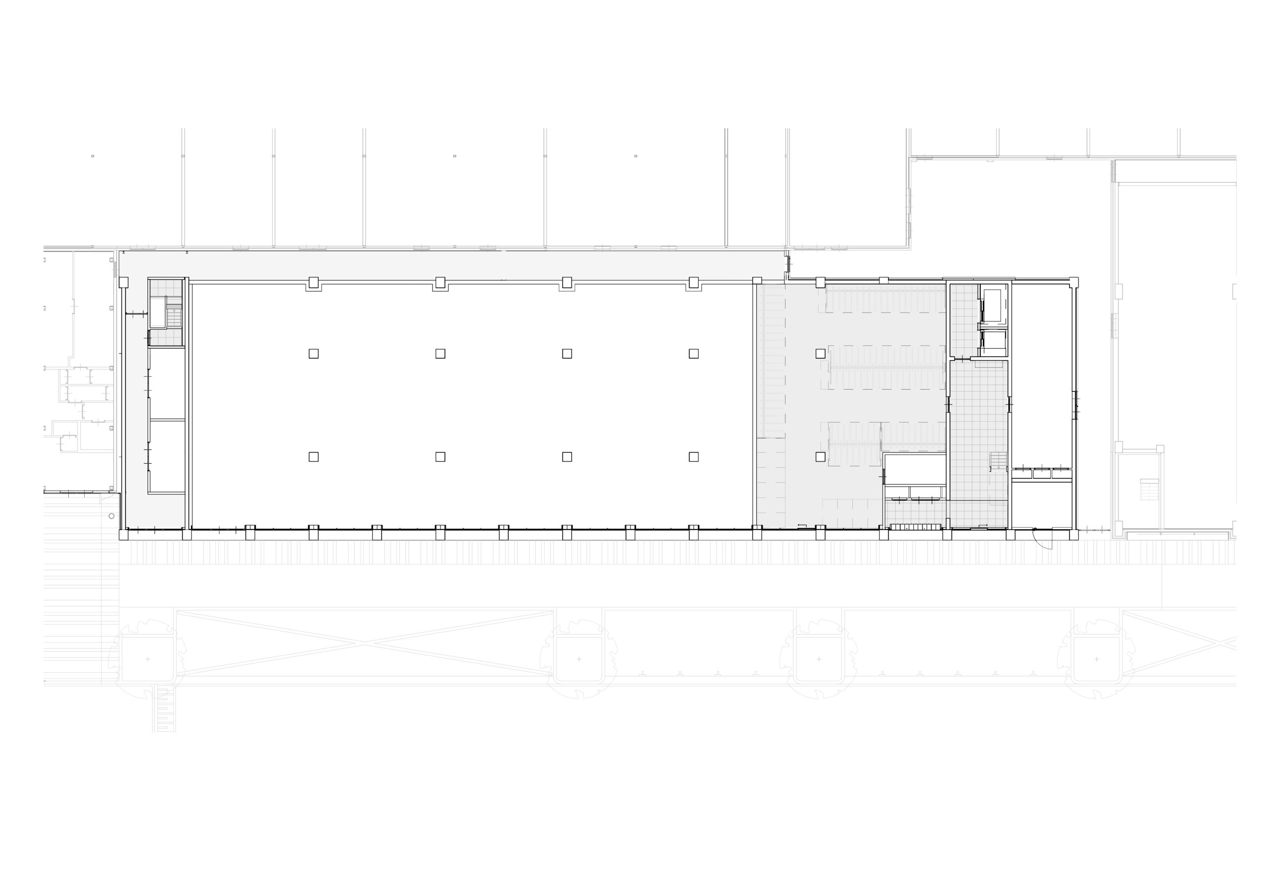
begane grond – entree, fietsenstalling en winkels

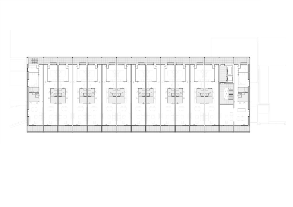
eerste verdieping – parkeerdek

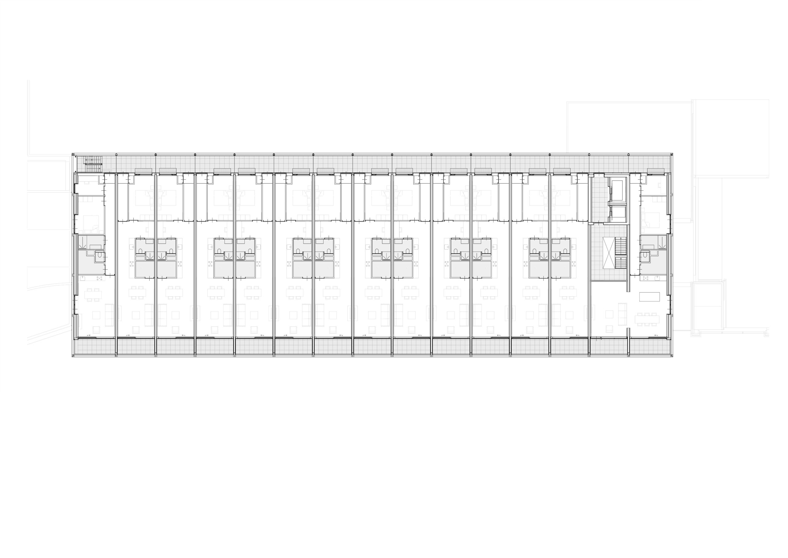
typische woningplattegrond


LOOF is een houten gebouw met zeventig compacte huurappartementen dat boven op een winkelcentrum met parkeerdek wordt gebouwd. Waar voorheen parkeerplaatsen en expeditie-ingangen de achterkant van winkelcentrum De Hoven vormden, transformeert LOOF deze plek tot een aantrekkelijke voorkant aan het water met uitnodigende winkelpuien aan de straat en daarboven een karakteristiek volume op een betonnen tafelconstructie. Tussen de poten van de tafel, achter een groene haag, wordt op de eerste laag geparkeerd. Deze zoom vormt de overgang tussen de publieke plint en het rode woongebouw erboven en verbindt de twee naastliggende parkeergarages met elkaar tot een groot parkeergebied.
In LOOF worden zestig tweekamer- en tien driekamerwoningen verdeeld over vijf woonlagen. Om de gewenste dichtheid op deze plek te bereiken, heeft het gebouw een structuur met een smalle 4,2 meter beukmaat. Dit maakt dat er veel aandacht is besteed aan het ontwerp van de woningplattegronden, om met voldoende daglicht, een efficiƫnte indeling en goede buitenruimtes, compacte, maar vooral prettige appartementen te bouwen.
De milieu-impact van LOOF wordt tot een minimum beperkt door de constructie van CLT (Cross Laminated Timber). Deze uitdagende bouwmethode maakt dat de woningen grotendeels modulair en fabrieksmatig kunnen worden voorbereid, het gewicht op de betonconstructie beperkt is en de bouwtijd wordt verkort. Daarnaast draagt de houten constructie bij aan een gezond binnenklimaat in de woning . Met deze opzet is LOOF een circulair gebouw, niet alleen omdat hout een biobased materiaal is, maar ook omdat de gebouwstructuur in de toekomst eenvoudig demontabel is. Met de integratie van nestkasten voor huismussen, groendaken en specifieke beplanting voor vlinders en bijen, draagt het gebouw tevens bij aan de biodiversiteit van de Poptahof in Delft.
LOOF laat zien dat verdichten, zelfs in een gebied dat bekend stond als de dichtstbevolkte vierkante kilometer van Nederland, tot meer ruimtelijke kwaliteit kan leiden. Met de uitgesproken rode rastergevel op de betonnen tafel, vertelt LOOF bij uitstek het optimistische verhaal van verdichten, inpassen en uitkienen in de stad.
Location: Troelstralaan, Delft
Program: woningbouw, commerciele ruimte, parkeren
Description: 60 tweekamer- en 10 driekamerwoningen
collaborating architect: dkv
Client: Van der Vorm Vastgoed
Year: 2022 – heden
Status: TO





begane grond – entree, fietsenstalling en winkels

eerste verdieping – parkeerdek

typische woningplattegrond
