








Connection to the city
The waterfront of the Wantij in Dordrecht has been an industrial site for centuries. The shipyards and warehouses have now disappeared, but the water tower, mill and power plant have been given new functions within the urban development, adjacent to the historic city center of Dordrecht. The Wantijhof is located in between the industrial artifacts. With its large metal bay windows, it connects to the large-scale buildings along the waterfront, while the brick facades in the street connect to the scale of the city center.
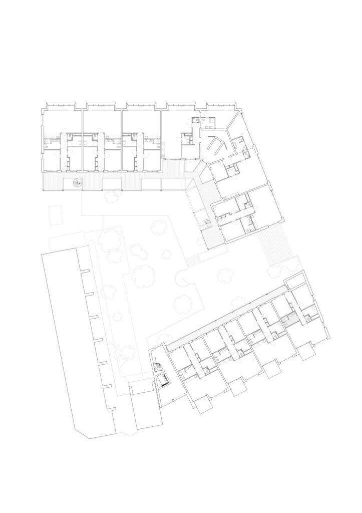
Collective living
Wantijhof forms a closed building block, together with an existing housing block. The new collective inner court is surrounded by 36 housing units of different scale and typology. All apartments have private balconies or a garden on the deck within an open steel grid structure. Because the daily routes in the plan traverse the garden, the galleries and the deck and pass the private outdoor spaces, the heart of the building is a place of social interaction. Due to the composition of the volumes and a large external staircase, the court can be reached and experienced from the public domain, and as such the boundaries between private, collective, and public differ during the day or the year. The picking garden in the heart of the plan can be opened for public in spring and the shared deck is an ideal place for a neighborhood barbecue, sheltered from the wind with a view over the water and the inner garden. This gives meaning to the Wantijhof for the entire district.
Contrast
The parking garage and storage areas are integrated into the plan, not visible from the street, making the building on the street lively and transparent. That is why the duplex apartments are built around the parking garage, with a room on street level and a deck garden on the first floor facing the inner court. The ground floor is designed as a flexible structure with extra height. This will eventually make it possible to create an office or shop around the inner garden with daylight on two sides. The facades are designed following the color range of the historic city center, with the red/brown brick and golden steel structure. They form the contrast between the stony, heavy exterior and the light, open structure of the collective courtyard.
Location: Dordrecht
Program: housing
Description: 36 apartment units
Client: Nederlandse Bouw Unie
Year: 2018-2022
Status: completed
Photography: Sebastian van Damme