











Aan weerszijden van de winkel zijn over de volledige hoogte twee op maat gemaakte kastenwanden geplaatst. Grote sparingen in de wanden vormen display ruimtes voor ruim 300 flessen wijn. Van de verschillende wijnen wordt slechts één fles gepresenteerd, de voorraad ligt in de kasten verborgen. De wijnwinkel oogt hierdoor rustig en overzichtelijk. De kastenwanden zijn bekleed met een raster van eikenhouten panelen. Deze panelen hebben het formaat van een wijnkist en zijn elk voorzien van laser gegraveerde logo’s van bekende wijnhuizen. Naast ruimte voor opslag van wijnen dienen de kasten tevens als scheiding tussen de winkel en ondersteunende ruimtes zoals een magazijn, toiletten en een kantoor.
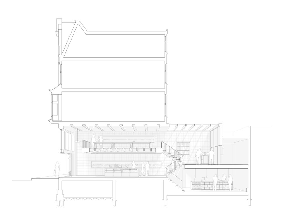
De wijnhandel bestaat uit een winkel- en een horecadeel, twee functies die conform Nederlandse regelgeving gescheiden dienen te blijven. Door slim gebruik te maken van de aanwezige niveauverschillen, zijn slijterij en proeflokaal van elkaar gescheiden zonder dat de ruimtelijke eenheid wordt aangetast. In de wijnhandel kan hierdoor wijn gekocht én gedronken worden.
De wijnhandel is opgebouwd uit vier niveaus: een kelder, begane grondvloer, entresol en bel-etage. De drie bovenste lagen zijn door middel van vides
met elkaar verbonden en vormen zo één genereuze en lichte ruimte. Met een metselwerk trap kan vanuit de winkel de wijnkelder worden betreden. Deze intrigerende donkere ruimte herbergt de collectie luxe wijnen. De verdiepte ligging waarborgt een constante en koele temperatuur, ideaal voor het langdurig bewaren van wijn. Het meubilair in de winkel is op maat ontworpen. In de kelder bieden twee lange zwarte meubels ruimte voor de collectie van luxe wijnen. Op de begane grond staat een groot meubel met opslag, een geïntegreerde kassa en een ruim werkvlak. Op het entresol staat een klein barmeubel waar wijn kan worden geproefd. De bel-etage is ingericht voor grotere proeverijen en is voorzien van educatieve tafels waarin kaarten van wijngebieden zijn gegraveerd.
De geschiedenis van de locatie is zorgvuldig geïntegreerd in het moderne ontwerp van de winkel. De achterwanden van de display ruimtes tonen het metselwerk van de oorspronkelijke fundering van een 17e-eeuwse V.O.C. scheepsloods. Het vooroorlogse pand staat aan een nieuw gerealiseerde jachthaven op de Admiraliteitskade in Rotterdam.
Location: Admiraliteitskade, Rotterdam
Program: wine store
Scale: 200 m2
Client: Bruderer Property b.v.
Year: 2015-2016
Status: completed
Photography: Sebastian van Damme, Adriaan van der Ploeg
Contractor: Woodwave
Structural engineer: Pieters Bouwtechniek