








Aan de rand van Zevenhuizen staat het woonhuis als een zuivere, zwarte sculptuur in een patchwork van kassen, landerijen en woningen. Op het eerste gezicht oogt het leien huis als een klassieke schuur op het achtererf, maar bij benadering toont het een eigentijdse, verfijnde detaillering.
Dit woonhuis is gebouwd op een kavel in de Zuidplaspolder. Het doel van de opgave was om een modern vormgegeven woning te creëren die past in de landelijke omgeving.
Het gebouw heeft een sobere, archetypische hoofdvorm, waarbij toevoegingen en onderbrekingen aan het volume zijn vermeden. Er zijn slechts enkele perforaties ter plaatse van verblijfsruimtes toegepast. Om de hoofdvorm te versterken, zijn dakvlak en gevel uitgevoerd in hetzelfde materiaal.
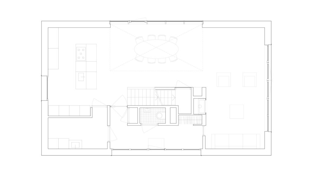
De leefruimtes van de woning zijn gepositioneerd aan de Oost- en Zuidzijde. In het volume zijn aan deze zijdes grote gevelopeningen aangebracht om een sterke visuele verbinding met de tuin te creëren. Een vide verbindt de woonkamer met de overloop op de slaapverdieping. De entree en serviceruimten zijn gepositioneerd aan de West- en Noordzijde van de woning. Openingen aan deze zijde van het volume zijn geminimaliseerd waardoor vanaf de straatzijde de sobere hoofdvorm sterk waarneembaar blijft.
In het hart van de woning worden trappen, garderobe, toilet en open haard gecombineerd in een centraal ‘meubel’. Dit meubel wordt uitgevoerd in eikenhout en vormt zo een opvallend warm contrast met de donkere buitenzijde. Voor de materialisering van de buitenzijde is gekozen voor vezelcement leien. Door de toepassing van deze leien kan een scherpe detaillering worden toegepast waarin de overgang van gevel naar dak vrijwel naadloos wordt gerealiseerd.
Location: Anjerlaan, Zevenhuizen
Program: house
Scale: 160 m2
Client: private
Year: 2016-2018
Status: completed
Photography: Sebastian van Damme
Contractor: de Hek b.v.
Structural engineer: A. de Lange